A tranquilidade do campo
junto ao mar

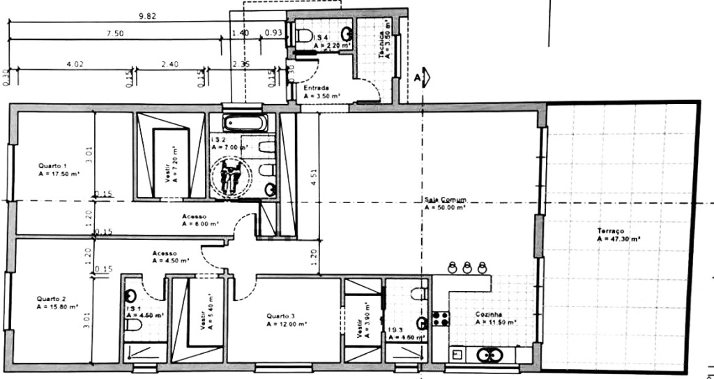
Detalhe do imóvel

Moradia nova T3 com terreno junto do mar - Serra do Bouro, Caldas da Rainha

Moradias - T3
Caldas da Rainha, Serra do Bouro
€ 800.000,00
Ref: RV2935
  • Natureza: Moradias
  • Tipologia: T3
  • Concelho: Caldas da Rainha
  • Freguesia: Serra do Bouro
  • Estado: Novo
  • Tipo de negócio: Venda
  • Área de construção: 194,85 m²
  • Área do terreno: 3.672,00 m²
  • Para Venda: 800.000,00 €
  • Classe Energética A

DESCRIÇÃO DO IMÓVEL

Moradia nova T3 com terreno junto do mar - Serra do Bouro, Caldas da Rainha

Quer conjugar conforto, qualidade, campo e praia? Então venha conhecer esta fantástica moradia nova T3, pronta a habitar, localizada entre as praias da Foz do Arelho e praia de São Martinho do Porto, na zona da Serra do Bouro, a poucos metros do oceano, tendo também a vertente de campo, uma vez que está implantada num terreno de 3.672 m2 com maravilhosas vistas de campo, e ainda a cerca de 10 minutos de carro da cidade de Caldas da Rainha e a 60 minutos de Lisboa.

A moradia destaca-se pelas suas 3 espaçosas suítes, todas com grandes casas de banho privativas e maravilhosos closets, pela zona social ampla de sala e cozinha com grande iluminação natural para o campo, o que confere extrema privacidade e acabamentos de luxo que conferem elegância proporcionando uma atmosfera agradável e convidativa ao lazer.

A moradia tem ainda um belíssimo terraço de 47 m2 com vista privilegiada.

Enorme envolvente de terreno e espaço exterior que permite diversas possibilidades, desde a criação de um jardim, até à construção de uma piscina, ideal para aproveitar os momentos de lazer e dias ensolarados.

Localização privilegiada com fácil e rápido acesso às praias e à cidade.

Composta por:
- Entrada / Hall
- Sala e cozinha: 61,50 m2
- Casa de banho social
- Suíte 1 (17,50 m2) com closet (7,20 m2) e casa de banho (7 m2)
- Suíte 2 (15,80 m2) com closet (5,40 m2) e casa de banho (4,50 m2)
- Suíte 3 (12 m2) com closet (3,90 m2) e casa de banho (4,50 m2)
- Zona técnica

Exterior:
- Terraço: 47,30 m2
- Terreno total: 3.672 m2

Equipada com:
- Cozinha equipada com eletrodomésticos da marca Bosch
- Sistema de controlo climático AirZone, com regulação de temperatura independente por divisão
- Sistema VMC
- Estores elétricos
- Caixilharia de corte térmico
- Vidros duplos
- Painéis Solares
- Bomba de Calor

Fale connosco para saber mais e marque já a sua visita!

Classe energética A

Contactos:
(+351) 961 309 994 (chamada rede móvel nacional)
(+351) 262 838 330 (chamada rede fixa nacional)
www.rainhavip.pt
www.rainhavip.com

Características

  • Painéis solares
  • Estores elétricos
  • Terraço
  • Internet (disponibilidade)
  • Telefone (disponibilidade)
  • Cozinha equipada (c/ electrodomésticos)
  • Vidros duplos
  • Casa de Máquinas
Mais informações

Preencha o seguinte formulário para receber mais informações sobre o imóvel ou marcar uma visita

Ao colocar os seus dados nos campos respetivos está a consentir que os dados enviados sejam utilizados para resposta.

Enviar
Voltar à listagem